Projektreferenzen Landschaftsplanung

   © Homepage - designed by F. Wells, 2010    LOGO Kruse


Ausbau Gerds Diek, Porta Westfalica - Nammen
Gerds Diek (vor Ausbau) Übersichtskarte Maßnahmenplan Bachlauf Unternammerholz Bachlauf Unternammerholz
Aufgabenstellung: Landschaftspflegerische Begleitplanung für Ausbau der ca. 1,2 km langen außerörtlichen Verbindungsstraße zwischen Zur Porta und Rintelner Straße in Porta Westfalica - Nammen sowie
Antrag auf Befreiung von den für das Landschaftsschutzgebiet geltenden Festsetzungen / Verboten unter Einbeziehung eines Artenschutzfachlichen Fachbeitrag (Artenschutzprüfung) und Natura-2000 Vorprüfung (Büro ILE-X, Dez. 2014) zur abschließenden Bewertung und Bilanzierung.
Entwicklung einer Gewässerumlegung als Teilprojekt zum Gewässerentwicklungsprojekt Weser-Werre-Else südl. angrenzend Naturschutz- / FFH-Gebiet Unternammerholz.
Objektplanung der Ausgleichsmaßnahmen.
Planungsleistungen: Landschafspflegerische Begleitplanung, LP 1 - 4 § 26 HOAI 2013, sowie
Objektplanung für Ausgleichsmaßnahmen, LP 1 - 7 § 39 HOAI 2013
Bearbeitungszeitraum: Apr. 2014 - Jan. 2015 (LBP)
Juni 2015 - Juli 2015 (Objektplan)
Fläche: rd. 20,0 ha
Auftraggeber: Wirtschaftsbetriebe Porta Westfalica, 32457 Porta Westfalica



Radweg Rintelner Straße, Vlotho
Radweg Radweg Radweg Regelquerschnitte Radweg Lageplan Ausgleichsmaßnahmen Radweg Radweg Bestandsaufnahme/Ausgleichsbilanz
Aufgabenstellung: Landschaftspflegerische Begleitplanung für Teilstück des Weserfernradwanderweges
ca. 3,4 km Radweg entlang dem Buhn bzw. in der Weserniederung von Vlotho - Uffeln bis Porta Westfalica - Veltheim. Integration von Ausgleichsmaßnahmen innerhalb des Plangebietes mit Schwerpunkt Artenschutzfachlicher Maßnahmen (bedeutendes Eidechsenvorkommen). Vorgezogene Ausgleichsmaßnahmen (CEF), Zusammenstellung eines Pflegekonzeptes, baufachliche Betreuung, Erstellung einer Schlussbilanz.
Objektplanung/Bauüberwachung der Ausgleichsmaßnahmen.
Planungsleistungen: Landschafspflegerische Begleitplanung, LP 5 § 26 HOAI 2009, sowie
Objektplanung für Ausgleichsmaßnahmen, LP 2 - 9 § 38 HOAI 2009
Bearbeitungszeitraum: Feb. 2009 – Mrz. 2010 (LBP)
Mrz. 2010 – Nov. 2011 (Objektplan)
Fläche: rd. 15,4 ha
Auftraggeber: Vlothoer Wirtschaftsbetriebe, 32602 Vlotho



Erschließung Im Obernfeld, Rinteln - OT Exten
Lageplan Urgelände Streuobstwiese mit Spielplatz Endausbau Auf dem Papenstein Spielplatz
Aufgabenstellung: Landschaftspflegerische Begleitplanung zum Erschließungsvorhaben B-Plan Nr. 17 'Im Obernfeld':
   1) Änderung Flächennutzungsplan sowie
   2) Aufstellung B-Plan,
für 19 Baugrundstücken (Wohnbebauung) in der Stadt Rinteln, OT Exten. Vollständige Integration der Kompensationsmaßnahmen innerhalb des Plangebietes in Form von Ortsrandeingrünungen, Festsetzungen von Pflanzungen auf den Baugrundstücken und Anlage einer Streuobstwiese.
Planungsleistungen: Landschafspflegerische Begleitplanung, LP 1 - 5 § 49 HOAI 1996, sowie
Objektplanung für Kompensationsmaßnahmen, LP 3 - 9 § 15 HOAI 1996
Bearbeitungszeitraum: Jul. 2003 - Feb. 2004
Fläche: rd. 1,7 ha
Auftraggeber: IDB Schaumburg GmbH&CoKG
31675 Bückeburg



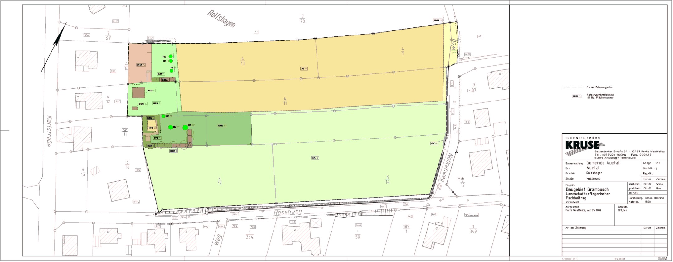
Erschließung Brambusch, Auetal - OT Rolfshagen
Lageplan-Biotopbestand Erschließungs-Entwurf Lageplan-Biotopbestand Pflanzplan-1 Pflanzplan-3
Aufgabenstellung: Landschaftspflegerische Begleitplanung zum Erschließungsvorhaben B-Plan Nr. 9 'Brambusch', für die Ausweisung von 22 Baugrundstücken (Wohnbebauung) in der Gemeinde Auetal, OT Rolfshagen.
Planungsleistungen: Landschafspflegerische Begleitplanung, LP 1 - 5 § 49 HOAI 1996, sowie
Objektplanung für Kompensationsmaßnahmen, LP 3 - 7 § 15 HOAI 1996
Bearbeitungszeitraum: Sep. 2002 - Mai 2003
Fläche: rd. 1,6 ha
Auftraggeber: IDB Schaumburg GmbH&CoKG
31675 Bückeburg



» Tätigkeitsschwerpunkt Landschaftsplanung

Ingenieurbüro Kruse
Selliendorfer Straße 34, 32457 Porta Westfalica


Drucker Druckversion (pdf)

>l>