Projektreferenzen Freianlagen

   © Homepage - designed by F. Wells, 2010    LOGO Kruse


Kita Grundschule Berlin, Bahnhofstraße Bad Nenndorf
Lageplan Verbindungsweg Querschnitt Erdarbeiten
Aufgabenstellung: Umgestaltung der Außenanlagen der KiTa an der Grundschule "Berlin", zum Schutz gegen Niederschlags-Wasserzuflüsse. Integration eines Füllkörpersystems mit Hebeanlage, Neuanlegung von Pflaster- und Sandspielflächen, Errichtung einer Natursteinmauer sowie Erdwälle.
Planungsleistungen: Objektplanung für Freianlagen LP 3 - 9 § 43 HOAI 2013
Bearbeitungszeitraum: Jan. 2014 - Sept. 2015
Baukosten: rd. 125.000 Euro
Auftraggeber: Samtgemeinde Nenndorf, 31542 Bad Nenndorf
Bauausführung: Fischer Garten- und Landschafsbau, 31698 Lindhorst



Kindergarten Sieben Bauern, Minden-Bärenkämpen
Lageplan Ausbauquerschnitte Ausbauplan Kiesrigole
Aufgabenstellung: Gestaltung der Freianlagen des KiGa-Neubaus (ca. 2.500 m² bef. Flächen), Pkw-Stellplätze, Fahrradständer, bef. Spielbereiche, einschl. Abwasserkanäle und Versickerungsanlage
Planungsleistungen: Objektplanung für Freianlagen LP 1 - 8 § 45 HOAI 2009
Bearbeitungszeitraum: Okt 2011 - Jan 2013
Baukosten: rd. 236.000 Euro  (Tiefbau)
Auftraggeber: Stadt Minden - FB 6.1 Gebäudewirtschaft, 32423 Minden
Bauausführung: Hillbau GmbH, 32479 Hille  (Tiefbauarbeiten)



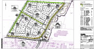
Erschließung Vordere Hohefeld, Bad Nenndorf
Pflanzplan Systemskizze Wallbepflanzung MiniSpielfeld Gestaltungsplan Spielplatz Pflanzplan Spielplatz Spielplatz Entwurf-Details Spielplatz
Aufgabenstellung: Freiflächen des Baugebietes Vordere Hohefeld (B-Plan Nr. 77), bestehend aus
  1. Ausgleichs-/ Wallbepflanzungen im Baugebiet des 1. Bauabschnitts
  2. Kompensation außerhalb des Baugebietes (Cecilienhöhe)
  3. Straßenbegleitgrün Kreisverkehrsplatz
  4. Straßenbegleitgrün im Baugebiet (1. BA)
  5. Spielplatz im Baugebiet (ca. 710 m²)
  6. DFB-Minispielfeld 13x20m mit Kunstrasen
Insgesamt ca. 21.500m² Rasen-/Wiesenflächen, ca. 6.750m² Gehölzpflanzungen mit ca. 150 Bäumen.
Planungsleistungen: Objektplanung für Freianlagen LP 1 - 9 § 15 HOAI 1996
Bearbeitungszeitraum: Aug 2008 -
Baukosten: rd. 177.000 Euro  (nur 1. BA)
Auftraggeber: GBG Grundstücksgesellschaft mbH, 31675 Bückeburg
Bauausführung: Seifert Garten- und Landschafts- und Wasserbau, 31542 Bad Nenndorf und
Fischer Garten- und Landschaftsbau, 31698 Lindhorst



Außenanlagen Grundschule Mosaik, Minden-Bärenkämpen
Lageplan Eingangsbereich Ausbauplan Kiesrigole Pflaster-Pyramidenstumpf Pflaster-Pyramidenstumpf
Aufgabenstellung: Neugestaltung der Freianlagen nach Neubau der Grundschule: Schulhofbefestigung (ca. 3.000 m²), Pflasterpyramide, Ausstattung mit versch. Sitzmobilar, Abfallbehältern, Fahrradständern, Versetzen von Spielgeräten (Altstandort), Abwasserkanälen, Versickerungsanlage und Begrünung (ca. 3.350 m² Rasenflächen, 350 m² Gehölzpflanzung).
Planungsleistungen: Objektplanung für Freianlagen LP 1 - 8 § 15 HOAI 1996,
Lp 3 - 5 für Begrünung
Bearbeitungszeitraum: Apr 2008 - Dez 2010
Baukosten: rd. 323.000 Euro  (Tiefbau, 1. + 2. BA)
rd.   20.000 Euro  (Begrünung)
Auftraggeber: Stadt Minden - FB 6.1 Gebäudewirtschaft, 32423 Minden
Bauausführung: Rasche GmbH, 32425 Hille  (Tiefbauarbeiten)
Wilhelm Kelle GmbH & Co. KG, 32457 Porta Westfalica  (Landschaftsbauarbeiten)



Außenanlagen Cornelia-Funke-Schule, Minden-Dankersen
Eingangsbereich Lageplan Füllkörperrigole Füllkörperrigole Schulhof Füllkörperrigole Schulhof Ausbauplan Spielbereich
Aufgabenstellung: Neugestaltung der Freianlagen nach Neubau der Cornelia-Funke-Schule: Schulhofbefestigung (ca. 2.850 m²), Müllcontainerstellplatz, Ausstattung mit versch. Sitzmobilar, Abfallbehältern, Fahrradständern und Spielgeräten, Kanalerneuerung, Versickerungsanlagen und Begrünung (ca. 3.300 m² Rasenflächen, 350 m² Gehözpflanzung).
Planungsleistungen: Objektplanung für Freianlagen LP 1 - 8 § 15 HOAI 1996
Bearbeitungszeitraum: Mai 2006 - Aug 2008
Baukosten: rd. 233.000 Euro  (Tiefbau)
rd. 35.000 Euro  (Landschaftsbau)
Auftraggeber: Stadt Minden - FB 6.1 Gebäudewirtschaft, 32423 Minden
Bauausführung: Hillbau GmbH, 32479 Hille  (Tiefbauarbeiten)
Hartmut Hoppe GmbH&Co.KG, 32425 Minden  (Landschaftsbauarbeiten)



Grundstücksumgestaltung Fa. Claus Groth GmbH, Kalletal
Lageplan Grundstücksentwässerung Detail Parkplatz/Entwässerung Detail Mitarbeiterlaube
Aufgabenstellung: Anlage eines Mitarbeiterparkplatzes mit Regenrückhaltbecken für gesamte Grundstücksentwässerung. Naturnahe Bauweisen und Integration in die vorh. Grünanlage, einschl. Erweiterung der Nutzungsmöglichkeiten für Mitarbeiterpausen.
Planungsleistungen: Objektplanung für Freianlagen LP 1 - 5 § 15 HOAI 1996,
einschl. tachymetr. Entwurfsvermessung
Bearbeitungszeitraum: Dez. 2002 - März 2003
Baukosten: -
Auftraggeber: Fa. Claus Groth GmbH, 32689 Kalletal
Bauausführung: (In Eigenregie durch den Bauherrn)



Außenanlagen Herder Gymnasium, Minden
Eingangsbereich Detailzeichnung Radständer Lageplan Innenhof Nördl. Schulhof Detailzeichnung Sitz-Stufenanlage Sitz-Stufenanlage
Aufgabenstellung: Neugestaltung der Freianlagen nach Erweiterung bzw. Sanierung des Schulkomplexes: Schulhofbefestigung (ca. 2.150 m²), Sitzstufenanlagen, Müllcontainerstellplatz, Ausstattung mit versch. Sitzmobilar, Abfallbehältern und Fahrradständern, Kanalerneuerung und Begrünung (ca. 770 m² zuzügl. 1.350m² sonstige Spielfläche).
Planungsleistungen: Objektplanung für Freianlagen LP 1 - 8 § 15 HOAI 1996
Bearbeitungszeitraum: Apr 2002 - Jun 2004
Baukosten: rd. 300.000 Euro
Auftraggeber: Stadt Minden - FB 6.1 Gebäudewirtschaft, 32423 Minden
Bauausführung: Rasche GmbH, 32425 Minden



Erschließung Amselweg, Bückeburg
Amselweg Pflanzplan Straßenbegleitgrün Amselweg Gestaltungsplan Spielplatz Pflanzplan Spielplatz Spielplatz
Aufgabenstellung: 1) Gestaltung des Straßenbegleitgrüns (ca. 650 m²) mit Bäumen und bodendeckenden Pflanzungen unter Berücksichtigung der Vorgaben des rechtskräftigen B-Planes für das Erschließungsgebiet Amselweg, in Bückeburg, OT Röcke.
2) Anlage eines Spielplatzes (ca. 780 m²) für Erschließungsgebiet bzw. näheres Umfeld unter Berücksichtigung der Spielgeräteausstattung gem. Bürgerbeteiligung sowie Bepflanzung gem. Vorgaben des rechtskräftigen B-Planes.
Planungsleistungen: Objektplanung für Freianlagen LP 1 - 9 § 15 HOAI 1996
Bearbeitungszeitraum: Okt 2002 - Juni 2004
Baukosten: rd. 60.000 Euro
Auftraggeber: IDB Schaumburg GmbH&CoKG, 31675 Bückeburg
Bauausführung: Rasche GmbH, 32425 Minden



Hausgarten A. Kruse, Porta Westfalica
Lageplan Lageplan Eingangsbereich Eingangsbereich Trittstein-Weg Steingarten unter Balkon
Teich Trittstein-Weg Detail Gräser Detail Steingarten
Aufgabenstellung: Anlage von Wegen und Terrassenflächen. Gestaltung eines Teichgartens im Anschluss an das Büro- und Wohngebäude. Ableitung des Niederschlagwassers von den Dachflächen in den Teich bzw. Kies-Sickerflächen. Anspruchsvolle abwechselungsreiche Bepflanzung mit Gehölzen, Stauden und Zwiebelpflanzen.
Planungsleistungen: LP 1 - 9
Bearbeitungszeitraum: Vorgarten Okt 2000 - Dez 2001
Hausgarten Jun 2002 - Juni 2003
Baukosten:
Auftraggeber: Herr Dipl. Ing. Andreas Kruse, 32457 Porta Westfalica
Bauausführung: Hartmut Hoppe GmbH&Co.KG, 32425 Minden



Simeonsplatz / Anbindung Schwichowwall, Minden
Zuwegung Lageplan Platzrandstraße Pflanzplan 2 BA Baumpflanzgrube Wurzelgraben
Zuwegung Lageplan Anbindung Schwichowwall Schwichowwall Vorplatz Pflanzplan Platzumfeld Platzrandstraße
Aufgabenstellung: Neugestaltung des Simeonsplatzes und Umfeld als städtischer Platz unter Berücksichtigung der möglichen Nutzungsansprüche und gestalterische Anknüpfung an das restaurierte Preußenmuseum sowie dessen umliegende z.T. historischer Bausubstanz aus der Preuß. Kasernenzeit.
Neben der Befestigung als großflächig nutzbarer Platz für Veranstaltungen u.a. wurden Versorgungsanschlüsse, Beleuchtung, zahlreiche Sitzmöglichkeiten mit Abfallbehältern, Fahrradständer u.a. geschaffen. Die Kanalisation wurde entspr. erweitert bzw. erneuert und eine Begrünung angelegt.
Neben der Planung für die Flächenbefestigung wurden dabei von uns zahlreiche Aufgaben, wie die Planung/Ausschreibung/Bauüberwachnung von Verkehrsflächen, Kanalalisation und Begrünung sowie Vermessungsarbeiten zur Absteckung bzw. Aufmaß für Straßen- und Kanalkataster bzw. Abrechnungspläne übernommen.
Planungsleistungen: Objektplanung für Freianlagen LP 2 - 9 § 15 HOAI 1996,
Objektplanung für Verkehrsanlagen LP 5 - 9 § 55 HOAI 1996, sowie
Entwurfs- und Bauvermessung § 97b und 98b HOAI 1996
(Weitere Entwurfsplanung durch Planungsgruppe GmbH Oberhausen)
Bearbeitungszeitraum: Mai 1999 - Juli 2007
Baukosten: rd. 10,2 Mio DM (gesamt)
Auftraggeber: Stadt Minden - FB 5.2 Straßenbau, 32423 Minden
Bauausführung:
(Bepflanzung)
Hartmut Hoppe GmbH&Co.KG, 32425 Minden
Rasche GmbH, 32425 Minden



» Tätigkeitsschwerpunkt Freianlagen

Ingenieurbüro Kruse
Selliendorfer Straße 34, 32457 Porta Westfalica


Drucker Druckversion (pdf)